Ga naar de inhoud

Woningaanbod

Ster met streepjes dikker | Thoma Post Makelaars

Weidestraat 14

€ 595.000,-
Kosten koper
Aantal kamers icoon | Makelaar Amsterdam
Aantal kamers: 4
Woonoppervlakte icoon | Makelaar Amsterdam
Woonoppervlakte: 70
Bouwjaar icoon | Makelaar Amsterdam
Bouwjaar: 1924

Omschrijving

Sfeervol hoekhuis met zonnige tuin in de Weidestraat 14!

Ben je op zoek naar een huis dat meteen voelt als thuis? Dit charmante en lichte hoekhuis in het karakteristieke Betondorp/Watergraafsmeer heeft alles wat je zoekt: een zonnige tuin, veel privacy, en een moderne, praktische indeling. Met drie slaapkamers en een ruime tuin op het zuidwesten is dit de perfecte plek om je woondromen waar te maken!

KENMERKEN
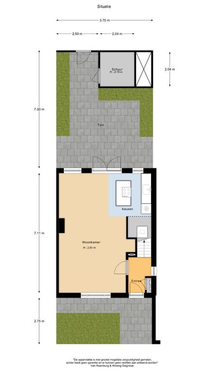
– Karakteristiek hoekhuis van 70 m²
– Zonnige voor- en achtertuin van 56 m² (gelegen op het zuidwesten)
– Intern verbouwd in 2019 (vergunning beschikbaar)
– Veel lichtinval en privacy: slechts aan één zijde buren
– Stenen schuur en handige achterom
– Gelegen in een rustige en groene omgeving
– Eeuwigdurende erfpacht

WONEN
Bij binnenkomst voel je meteen de charmante sfeer van dit huis. De woonkamer is heerlijk licht, dankzij de grote ramen die de ruimte vullen met zonlicht. De open indeling maakt het gezellig en geeft een ruimtelijk gevoel. Het uitzicht op de groene, zonnige tuin brengt buiten naar binnen – een perfecte plek om te ontspannen na een drukke dag.

KOKEN
De open keuken is dé plek waar koken en samenzijn samenkomen. Terwijl je kookt, blijf je gemakkelijk in contact met je gasten of familie in de woonkamer. Met voldoende werkruimte, moderne voorzieningen en uitzicht op de tuin wordt koken hier een feestje!

SLAPEN EN BADEN
Op de eerste verdieping vind je twee fijne slaapkamers en een mooie moderne badkamer met inloopdouche en toilet. Een tweede separaat toilet bevindt zich op de overloop. De ruime kamers bieden alle mogelijkheden voor een rustige nachtrust of een stijlvolle werkplek. Via de vlizotrap bereik je de zolderverdieping, waar genoeg ruimte is voor een tweepersoonsbed of extra opbergruimte. Deze flexibele indeling maakt het huis ideaal voor zowel gezinnen als stellen.

BUITENLEVEN
Stap naar buiten en geniet van je zonnige voor- en achtertuin, gelegen op het zuidwesten. Met maar liefst 56 m² is er volop ruimte voor een gezellige barbecue, een comfortabele loungeset of om de kinderen heerlijk te laten spelen. De tuin biedt veel privacy en heeft een stenen schuur én een handige achterom. Dit is jouw eigen stukje groen midden in de stad!

LOCATIE
De woning ligt in het sfeervolle en rustige Betondorp, een groene oase in Watergraafsmeer. Voor je dagelijkse boodschappen kun je terecht op het Christiaan Huygensplein, en het nabijgelegen winkelcentrum Oostpoort biedt gezellige koffietentjes en restaurants. Zin in een uitstapje? De Dappermarkt ligt op korte afstand.

Sportievelingen hebben volop keuze met faciliteiten zoals sportpark Middenmeer, de Jaap Eden IJsbaan, en verschillende sportscholen in de buurt. Bovendien is de woning uitstekend bereikbaar: de ringweg A10, A1, en A2 zijn binnen enkele minuten bereikbaar, en ook het openbaar vervoer is goed geregeld.

OPPERVLAKTE
Met een woonoppervlakte van 70 m² biedt deze woning alle ruimte voor comfortabel wonen. De woning is ingemeten door een extern bureau conform NEN2580, en het meetrapport is beschikbaar.

ERFPACHT
De woning is gelegen op erfpachtgrond. De canon is afgekocht tot 15 november 2054. Vanaf 16 november 2054 geldt een vaste jaarlijkse canon op basis van eeuwigdurende erfpacht conform de Algemene Bepalingen 2016.

VvE
De Vereniging van Eigenaren VVE Betondorp Blok 5 bestaat uit een groot aantal leden en is in beheer bij VVE Beheer Amsterdam. De maandelijkse servicekosten zijn € 308,53.
Notulen en aanvullende stukken zijn ter inzage beschikbaar.

OPLEVERING
De oplevering van de woning is in overleg.

Kun je niet wachten om dit charmante hoekhuis met eigen ogen te zien? Neem snel contact met ons op en ontdek zelf waarom dit jouw droomhuis is!

Disclaimer
Deze informatie is zorgvuldig samengesteld. Er wordt geen aansprakelijkheid aanvaard voor eventuele onvolledigheden of onjuistheden. Alle opgegeven maten en oppervlakten zijn indicatief.
————————————————————————————————————————————————
Charming Corner House with sunny Garden on Weidestraat 14!

Are you looking for a home that immediately feels like yours? This charming and bright corner house in the characteristic Betondorp/Watergraafsmeer area has everything you need: a sunny garden, lots of privacy, and a modern, practical layout. With three bedrooms and a spacious garden facing southwest, it’s the perfect place to make your housing dreams come true! Interested? Read on!

FEATURES
• Characteristic corner house of 70 m²
• Sunny front and back garden of 56 m² (facing southwest)
• Renovated internally in 2019 (permit available)
• Plenty of natural light and privacy: neighbors only on one side
• Brick storage shed with convenient back entrance
• Located in a peaceful, green area
• Perpetual leasehold

LIVING
The moment you step inside, you’ll feel the charm of this home. The living room is wonderfully bright, thanks to large windows that fill the space with sunlight. The open layout creates a cozy and spacious feel. The view of the lush, sunny garden brings the outdoors in – the perfect place to unwind after a busy day.

COOKING
The open-plan kitchen is where cooking and socializing come together. While you prepare meals, you can easily stay connected with guests or family in the living room. With ample counter space, modern appliances, and a view of the garden, cooking here is pure joy!

SLEEPING AND BATHING
Upstairs, you’ll find two comfortable bedrooms and a modern bathroom with a walk-in shower and toilet. A second separate toilet is located on the landing. The spacious rooms offer options for a peaceful night’s sleep or a stylish workspace. The attic, accessible via a loft ladder, provides enough space for a double bed or extra storage. This flexible layout makes the home ideal for both families and couples.

OUTDOOR LIVING
Step outside and enjoy your sunny front and back garden, facing southwest. With 56 m² of outdoor space, there’s plenty of room for a cozy barbecue, a comfortable lounge set, or a place for kids to play freely. The garden offers a lot of privacy and includes a brick storage shed and a convenient back entrance. It’s your own piece of greenery in the city!

LOCATION
This home is situated in the charming and peaceful Betondorp, a green oasis in Watergraafsmeer. For daily groceries, head to the Christiaan Huygensplein, while the nearby Oostpoort shopping center offers cozy cafés and restaurants. Fancy an outing? The Dappermarkt is just a short distance away.

Sports enthusiasts have a wide range of options with facilities such as Middenmeer Sports Park, the Jaap Eden Ice Rink, and several gyms nearby. The property is also very accessible: the A10, A1, and A2 motorways are just minutes away, and public transportation is excellent.

SIZE
With a living area of 70 m², this home offers plenty of space for comfortable living. The property has been measured by an external agency in accordance with NEN2580 standards, and the measurement report is available.

LEASEHOLD
The property is located on leasehold land. The ground rent has been bought off until November 15, 2054. From November 16, 2054, a fixed annual ground rent will apply based on perpetual leasehold in accordance with the 2016 General Provisions.

DELIVERY
The delivery of the property is subject to agreement.

Can’t wait to see this charming corner house with your own eyes? Contact us today and discover why this could be your dream home!

Disclaimer
This information has been carefully compiled. No liability is accepted for any inaccuracies or omissions. All measurements and areas provided are indicative.

Eigenschappen

Overdracht

Prijs:

€ 595.000,-
Kosten koper

Status:

Verkocht

Servicekosten:

€ € 308,-
Bouw

Type gebouw:

Appartement

Bouwjaar:

1924
Oppervlakte & inhoud

Woonoppervlakte:

70

Inhoud:

292
Indeling

Aantal kamers:

4

Slaapkamers:

3

Plan een bezichtiging

Bij sommige woningen is een optie tot direct zelf inplannen via de knop ‘Plan afspraak’. Anders kun je hier een bezichtiging aanvragen en nemen wij zo snel mogelijk contact op.

Vind sneller jouw nieuwe huis

Maak kennis met Copaan, de slimme zoektool voor koopwoningen.

Vul al je woonwensen in, van harde eis tot ‘dat zou leuk zijn’ en Copaan vindt de best matchende buurten & woningen voor je