Ga naar de inhoud

Woningaanbod

Ster met streepjes dikker | Thoma Post Makelaars

Timorstraat 1 H

€ 650.000,-
Kosten koper
Aantal kamers icoon | Makelaar Amsterdam
Aantal kamers: 3
Woonoppervlakte icoon | Makelaar Amsterdam
Woonoppervlakte: 79
Bouwjaar icoon | Makelaar Amsterdam
Bouwjaar: 1914

Omschrijving

*English text below*

Stijlvolle en volledig verbouwde begane grond woning met tuin in de Indische Buurt!

Ben je op zoek naar een modern en licht appartement met tuin in éen van de meest bruisende buurten van Amsterdam? Deze volledig gerenoveerde begane grond woning van 79 m², gelegen in de hippe Indische Buurt, biedt alles wat je zoekt: stijlvol wonen, een fijne buitenruimte en een vrij uitzicht aan de voorzijde. Dit appartement combineert comfort, ruimte en een toplocatie.

KENMERKEN
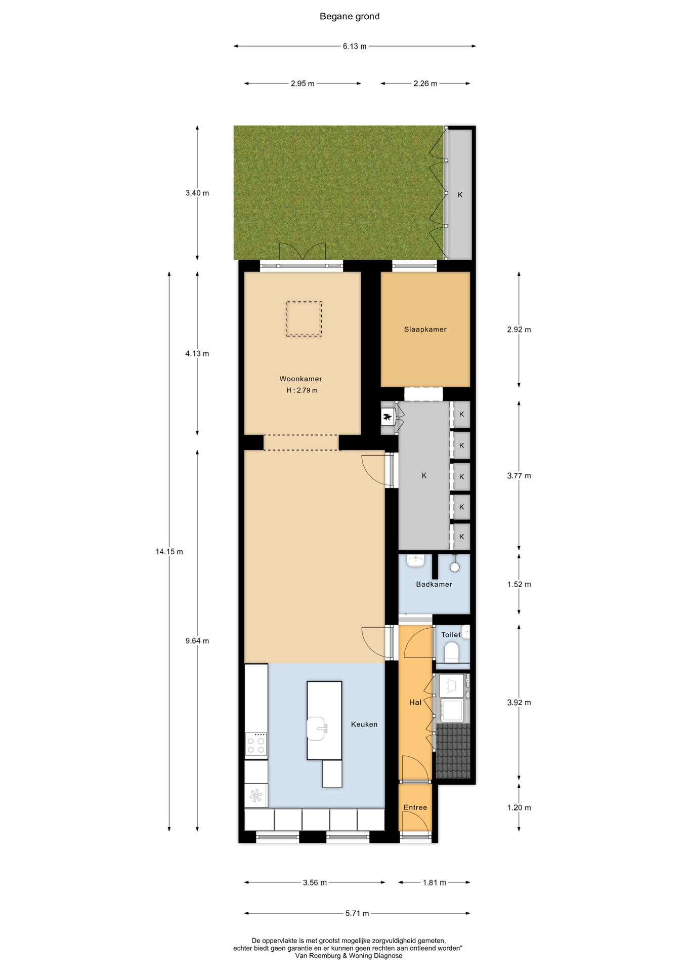
– Woonoppervlakte 79 m² (conform NEN2580)
– Tuin op het noorden, direct toegankelijk vanuit de woonkamer
– Volledig gerenoveerd met hoogwaardige afwerking in 2018
– Prachtige houten visgraat vloer door de gehele woning
– Elektrisch bedienbare gordijnen
– Vrij uitzicht op het Timorplein
– Eigen CV ketel, 2018
– Energielabel E
– Actieve VvE, maandelijkse bijdrage: € 114,-
– Erfpachtcanon is eeuwigdurend afgekocht
– Mogelijkheid tot realiseren 2e slaapkamer

WONEN
Stap binnen in deze superstrakke, moderne, ruime en lichte woning en voel direct de warme sfeer. De hoge plafonds en ramen zorgen voor veel natuurlijk licht en een heerlijk ruimtelijk gevoel.
Bij binnenkomst via je eigen entree, kom je in de lange hal waar ook de wasmachine en wasdroger een plek hebben gevonden middels een mooie op maat gemaakte wand.
Als je vervolgens de living binnen loopt bepaalt het mooie keukeneiland de sfeer van de strakke maar toch super gezellige keuken. Van hieruit is er uitzicht op het Timorplein.

In het midden van deze ruimte staat de lange eettafel, nu het hart van het huis en deze loopt over in het zitgedeelte waar je heerlijk kunt relaxen, deze ruimte was voorheen de 2e slaapkamer en eenvoudig weer als zodanig te gebruiken.
Ook de slaapkamer ligt aan de rustige achterzijde en loop je binnen via de inloopkasten waar je je kleding op kunt bergen.
Door het openzetten van de openslaande deuren betrek je de tuin bij de woning.

Alle ruimtes -m.u.v. de badkamer- zijn afgewerkt met een prachtige houten visgraat vloer.

KOKEN
De open leef-keuken aan de voorzijde van de woning is een echte eyecatcher. Met veel werk- en opbergruimte is deze keuken ideaal voor kookliefhebbers. Of je nu een snelle maaltijd bereidt of een uitgebreid diner met vrienden organiseert, de keuken is van alle gemakken voorzien en biedt vanaf de met hout afgewerkte bar een mooi uitzicht over het Timorplein.

SLAPEN EN BADEN
Aan de achterzijde van het appartement bevindt zich de rustige slaapkamer die je binnenloopt via de inloopkast. Door het huidige zitgedeelte weer af te sluiten heb je heel eenvoudig een ruime 2e slaapkamer.

De strakke, op maat gemaakte, moderne badkamer is voorzien van een fraai wastafelmeubel en een inloop-regendouche. Het toilet is apart en in dezelfde stijl uitgevoerd.

BUITEN
De fijne tuin aan de achterzijde is direct bereikbaar vanuit de woonkamer en biedt een rustige plek om te ontspannen midden in de stad. Met voldoende ruimte voor een lounge set en planten, is dit de perfecte plek om te genieten van het buitenleven. De tuin is een oase van rust in de levendige Indische Buurt. Er is een aparte berging voor het stallen van tuinkussens, tuingereedschap en een wielrennersfiets.

WOONOPPERVLAKTE
Het appartement heeft een woonoppervlakte van 79 m²; dit is exclusief de berging en de tuin. De woning is door een extern bureau ingemeten conform NEN2580.

VvE
Het appartement is onderdeel van een actieve en professioneel beheerde Vereniging van Eigenaren (VvE).
De maandelijkse servicekosten voor het appartement bedragen € 114,-

EIGENDOMSSITUATIE GROND
Het appartement is gebouwd op grond in eigendom van de gemeente Amsterdam. De canon is echter eeuwigdurend afgekocht!

LOCATIE
De woning ligt in de geliefde Indische Buurt in Amsterdam-Oost – éen van de meest bruisende en gewilde wijken van de stad. Alles wat je nodig hebt, ligt binnen handbereik: hippe koffietentjes, trendy cocktailbars en gezellige restaurants aan de Javastraat, Linnaeusstraat en Middenweg. Voor je dagelijkse boodschappen kun je terecht op de Dappermarkt en ontspanning vind je in het nabijgelegen Oosterpark.

BEREIKBAARHEID
Met station Muiderpoort, tram 14 en diverse buslijnen op loopafstand, en de Ring A10 op slechts enkele minuten rijden, is de bereikbaarheid uitstekend. Het centrum van Amsterdam ligt op minder dan 10 minuten fietsen.
Heb je een auto dan kun je bij de gemeente een parkeervergunning aanvragen.

OPLEVERING
In overleg

Benieuwd?
Wil je dit prachtige appartement met eigen tuin en vrije ligging zelf ervaren? Neem contact met ons op voor een bezichtiging en ontdek jouw nieuwe thuis in de Indische Buurt!

Disclaimer
Deze informatie is zorgvuldig samengesteld. Er wordt geen enkele aansprakelijkheid aanvaard voor eventuele onvolledigheid of onjuistheid. Alle opgegeven maten en oppervlakten zijn indicatief.
————————————————————————————————————————————–
Stylish and completely renovated ground floor flat with garden in the Indische Buurt!

Are you looking for a modern and bright flat with garden in one of the most vibrant neighbourhoods of Amsterdam? This fully renovated ground floor flat of 79 m², located in the trendy Indische Buurt neighbourhood, offers everything you are looking for: stylish living, a nice outdoor space and an unobstructed view at the front. This flat combines comfort, space and a prime location.

FEATURES
– Living area 79 m² (according to NEN2580)
– North-facing garden, directly accessible from the living room
– Completely renovated with high-quality finishing in 2018
– Beautiful wooden herringbone floor throughout the house
– Electrically operated curtains
– Unobstructed views of Timorplein
– Own central heating boiler, 2018
– Energy label E
– Active community association, monthly contribution: € 114
– Leasehold is perpetually bought off
– Possibility to realize 2nd bedroom

LIVING
Step inside this super sleek, modern, spacious and bright house and immediately feel the warm atmosphere. The high ceilings and windows provide plenty of natural light and a lovely spacious feeling.
Upon entering via your own entrance, you enter the long hallway where the washing machine and dryer have also found a place through a beautiful custom-made wall.
When you then walk into the living room, the beautiful kitchen island defines the atmosphere of the sleek yet super cosy kitchen. From here, there are views of Timorplein.

In the centre of this space is the long dining table, now the heart of the house, and it flows into the seating area where you can relax. By opening the French doors, you bring the garden into the house.
The bedroom is also at the quiet rear and you walk in through the walk-in wardrobes where you can store your clothes.

All rooms -except the bathroom- are finished with a beautiful wooden herringbone floor.

COOKING
The open living-kitchen at the front of the house is a real eye-catcher. With plenty of work and storage space, this kitchen is ideal for cooking enthusiasts. Whether you are preparing a quick meal or organising an elaborate dinner with friends, the kitchen is fully equipped and offers a nice view over Timorplein from the wood-finished bar.

SLEEPING AND BATHING
At the rear of the apartment is the quiet bedroom, which you enter through the walk-in closet. It’s very easy to create a second bedroom, it’s now been used as the lounge area.

The sleek, bespoke, modern bathroom is fitted with a beautiful washbasin cabinet and a walk-in rain shower. The toilet is separate and in the same style.

OUTSIDE
The fine rear garden is directly accessible from the living room and offers a quiet place to relax in the middle of the city. With enough space for a lounge set and plants, this is the perfect place to enjoy the outdoors. The garden is an oasis of calm in the lively Indian Neighbourhood. There is a separate storage room for storing garden cushions, garden tools and a cycling bike.

LIVING AREA
The flat has a living area of 79 m², excluding the storage room and the garden. The house was measured by an external agency in accordance with NEN2580.

VvE
The flat is part of an active and professionally managed Owners’ Association (VvE).
The monthly service costs for the apartment amount to € 114,-.

LAND OWNERSHIP
The flat is built on land owned by the municipality of Amsterdam. However, the canon is bought off in perpetuity!

LOCATION
The property is located in the popular Indische Buurt in Amsterdam East – one of the most vibrant and sought-after neighbourhoods in the city. Everything you need is within reach: hip coffee shops, trendy cocktail bars and cosy restaurants on Javastraat, Linnaeusstraat and Middenweg. For your daily shopping, head to the Dappermarkt and relax in the nearby Oosterpark.

ACCESSIBILITY
With Muiderpoort station, tram 14 and various bus lines within walking distance, and the A10 ring road just a few minutes’ drive away, accessibility is excellent. The centre of Amsterdam is less than 10 minutes by bike.
If you have a car, you can apply for a parking permit from the municipality.

DELIVERY
In consultation

Curious?
Would you like to experience this beautiful flat with private garden and free location yourself? Contact us for a viewing and discover your new home in the Indische Buurt!

Disclaimer
This information has been carefully compiled. No liability is accepted for any incompleteness or inaccuracy. All stated dimensions and surface areas are indicative.

Eigenschappen

Overdracht

Prijs:

€ 650.000,-
Kosten koper

Status:

Verkocht

Servicekosten:

Niet beschikbaar
Bouw

Type gebouw:

Appartement

Bouwjaar:

1914
Oppervlakte & inhoud

Woonoppervlakte:

79

Inhoud:

214
Indeling

Aantal kamers:

3

Slaapkamers:

2

Plan een bezichtiging

Bij sommige woningen is een optie tot direct zelf inplannen via de knop ‘Plan afspraak’. Anders kun je hier een bezichtiging aanvragen en nemen wij zo snel mogelijk contact op.

Vind sneller jouw nieuwe huis

Maak kennis met Copaan, de slimme zoektool voor koopwoningen.

Vul al je woonwensen in, van harde eis tot ‘dat zou leuk zijn’ en Copaan vindt de best matchende buurten & woningen voor je