Ga naar de inhoud

Woningaanbod

Ster met streepjes dikker | Thoma Post Makelaars

Polderweg 492 C

€ 750.000,-
Kosten koper
Aantal kamers icoon | Makelaar Amsterdam
Aantal kamers: 3
Woonoppervlakte icoon | Makelaar Amsterdam
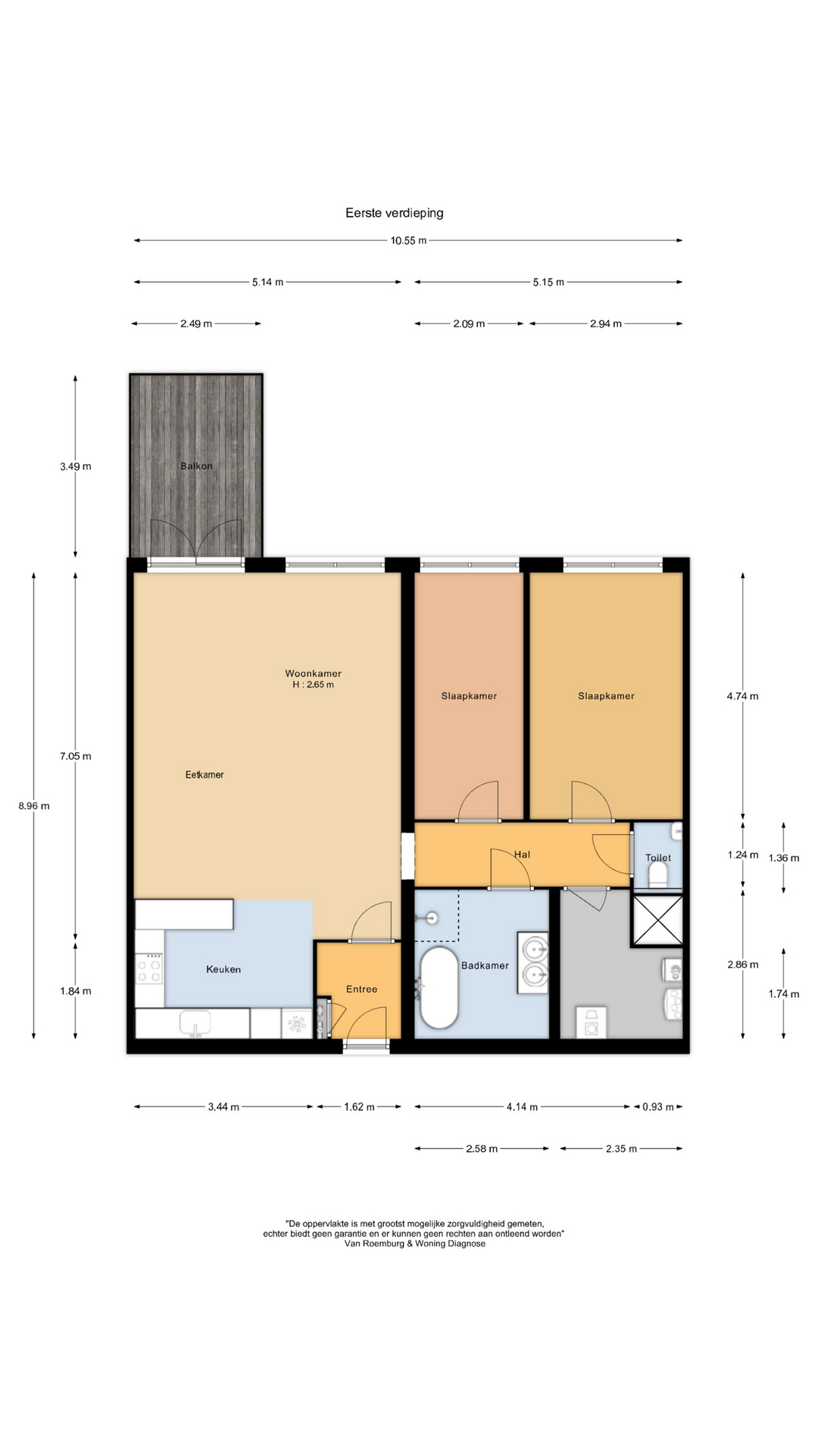
Woonoppervlakte: 93
Bouwjaar icoon | Makelaar Amsterdam
Bouwjaar: 2018
Amsterdamse woningmarkt Q1 2026

Omschrijving

Wonen in een modern en comfortabel appartement met veel licht, een fijne indeling en een zonnig balkon? Dit goed onderhouden appartement van circa 93 m², gelegen in een nieuwbouwcomplex uit 2018, biedt alles wat je zoekt. Met twee ruime slaapkamers, een open keuken met bar en een balkon op het zuidwesten is dit een plek waar je je direct thuis voelt. Hier woon je rustig, met alle levendigheid van Amsterdam Oost binnen handbereik.

KENMERKEN
Woonoppervlakte ca. 93 m² (NEN2580)
Appartement in modern complex (bouwjaar 2018)
2 ruime slaapkamers
Zonnig balkon op het zuidwesten (middag- en avondzon)
Lichte woonkamer met openslaande deuren
Open keuken met bar en inbouwapparatuur
Vloerverwarming door de gehele woning
Energielabel A
Lift aanwezig
Interne berging én externe berging (ca. 8 m²)
Gemeenschappelijk parkeerplaatsterrein aanwezig
Gezonde en professioneel beheerde VvE
Jaarlijkse erfpachtcanon €2.592,- (tijdvak t/m 31-07-2066)

WONEN
De woonkamer is ruim opgezet en dankzij de grote raampartijen heerlijk licht. Er is volop ruimte voor een gezellige zithoek en een eettafel om uitgebreid te tafelen. De openslaande deuren naar het balkon zorgen ervoor dat binnen en buiten naadloos in elkaar overlopen – het balkon voelt echt als een verlengstuk van de woonkamer. Vanuit de woonkamer kijk je uit op de rustige, groene binnenplaats, wat zorgt voor een fijne, ontspannen sfeer.

De strakke gietvloer met vloerverwarming loopt door het gehele appartement en draagt bij aan het moderne en comfortabele karakter. Dankzij de goede isolatie blijft het appartement in de zomer aangenaam koel en in de winter juist comfortabel warm, wat bijdraagt aan een prettig en energiezuinig woonklimaat.

KOKEN
De open keuken is uitgevoerd in een praktische U-opstelling en sluit mooi aan op de leefruimte. De bar maakt het een gezellige plek om te koken en tegelijkertijd contact te houden met gasten. De keuken is voorzien van diverse inbouwapparatuur van AEG, waaronder een inductiekookplaat, een dubbele oven (met magnetron- en stoomfunctie) en een wijnkoelkast. Daarnaast is er meer dan voldoende opbergruimte, waardoor functionaliteit en comfort goed samenkomen.

SLAPEN EN BADEN
Het appartement beschikt over twee goed bemeten slaapkamers, beide gelegen aan de rustige binnenzijde van het complex. Hierdoor geniet je hier van stilte en privacy, zonder geluid van de stad. De kamers zijn licht met grote ramen en praktisch in te delen, ideaal als slaapkamer, werkkamer of kinderkamer.

De badkamer is ruim en compleet uitgevoerd met een dubbele wastafel, een inloopdouche en een ligbad. Daarnaast is er een separate ruimte voor de wasmachine en droger, wat bijdraagt aan extra comfort en praktische indeling.

BUITENLEVEN
Het balkon van circa 9 m² is gelegen op het zuidwesten en biedt zon vanaf de middag tot in de avond. Een ideale plek om na een werkdag te ontspannen of om in de zomer lang buiten te zitten. Het balkon beschikt over een elektriciteitsaansluiting en kijkt uit over de rustige binnentuin, wat zorgt voor een aangename en beschutte buitenruimte.

LOCATIE
De woning is gelegen in een rustige en gezellige buurt in Amsterdam Oost, met werkelijk alles binnen handbereik. Op loopafstand vind je winkelcentrum Oostpoort, de levendige Javastraat en de Dappermarkt. Voor groen en ontspanning zijn het Oosterpark, Park Frankendael en het Flevopark dichtbij.

Ook qua horeca zit je hier goed: denk aan hotspots zoals The Cottage, De Vergulden Eenhoorn en diverse cafés en restaurants in de Javastraat zoals Badhuis en Tigris & Eufraat.

Bereikbaarheid is uitstekend: station Muiderpoort ligt op circa 5 minuten lopen en met de fiets ben je binnen 15 minuten in het centrum. Ook zijn er diverse tramverbindingen in de buurt en ben je met de auto snel op de ring A10.

WOONOPPERVLAKTE EN BUITENRUIMTE
Woonoppervlakte: circa 93 m²
Balkon: circa 9 m²
Berging: circa 8 m²

VVE
Actieve en professioneel beheerde VvE
Servicekosten € 188 per maand
Bijdrage binnenterrein ca. €8,96 per maand
Meerjarig onderhoudsplan aanwezig
Recent schilderwerk uitgevoerd

ERFPACHT
De woning is gelegen op gemeentelijke erfpacht. De jaarlijkse canon bedraagt €2.592,- en het huidige tijdvak loopt tot 31-07-2066. De overstap naar eeuwigdurende erfpacht is reeds onder gunstige voorwaarden vastgelegd bij de notaris.

OPLEVERING
In overleg

DISCLAIMER
Deze informatie is met zorg samengesteld. Aan de inhoud kunnen echter geen rechten worden ontleend. Alle opgegeven maten en oppervlakten zijn indicatief.

Looking for a modern and comfortable apartment with plenty of natural light, a practical layout and a sunny balcony? This well-maintained apartment of approximately 93 m², located in a newly built complex from 2018, offers everything you need. With two spacious bedrooms, an open kitchen with bar and a southwest-facing balcony, this is a place where you will immediately feel at home. Here you live in a peaceful setting, while all the vibrancy of Amsterdam East is within easy reach.

FEATURES
Living area approx. 93 m² (NEN2580)
Apartment in modern complex (built in 2018)
2 spacious bedrooms
Sunny southwest-facing balcony (afternoon and evening sun)
Bright living room with French doors
Open kitchen with bar and built-in appliances
Underfloor heating throughout the apartment
Energy label A
Lift available
Internal storage and external storage (approx. 8 m²)
Shared parking area available
Well-managed and financially sound homeowners’ association
Annual ground rent €2,592 (period until 31-07-2066)

LIVING
The living room is generously laid out and wonderfully bright thanks to the large windows. There is ample space for a comfortable seating area and a dining table for extended dinners. The French doors to the balcony create a seamless connection between indoor and outdoor living – the balcony truly feels like an extension of the living room. From the living room you overlook the quiet and green courtyard, creating a relaxed and pleasant atmosphere.

The sleek cast floor with underfloor heating runs throughout the apartment, contributing to its modern and comfortable character. Thanks to good insulation, the apartment remains pleasantly cool in summer and comfortably warm in winter, resulting in an energy-efficient living environment.

COOKING
The open kitchen is designed in a practical U-shape and connects beautifully to the living area. The bar makes it a welcoming place to cook while staying connected with guests. The kitchen is equipped with various AEG built-in appliances, including an induction hob, a double oven (with microwave and steam function) and a wine cooler. There is also ample storage space, combining functionality and comfort.

SLEEPING AND BATHING
The apartment features two well-proportioned bedrooms, both located on the quiet inner side of the complex. This ensures peace and privacy, away from city noise. The rooms are bright with large windows and can be arranged practically, ideal as bedrooms, a home office or children’s rooms.

The bathroom is spacious and fully equipped with a double washbasin, a walk-in shower and a bathtub. In addition, there is a separate space for a washing machine and dryer, adding extra comfort and convenience.

OUTDOOR LIVING
The balcony of approximately 9 m² faces southwest and offers sun from the afternoon into the evening. An ideal place to relax after a workday or to enjoy long summer evenings outdoors. The balcony has an electricity connection and overlooks the quiet inner garden, creating a pleasant and sheltered outdoor space.

LOCATION
The property is located in a quiet and pleasant neighbourhood in Amsterdam East, with everything within easy reach. Within walking distance you will find Oostpoort shopping centre, the lively Javastraat and the Dappermarkt. For green spaces and relaxation, Oosterpark, Park Frankendael and Flevopark are all nearby.

The area also offers excellent dining options, including hotspots such as The Cottage, De Vergulden Eenhoorn and various cafés and restaurants on Javastraat like Badhuis and Tigris & Eufraat.

Accessibility is excellent: Muiderpoort Station is approximately a 5-minute walk away and the city centre can be reached within 15 minutes by bike. There are also several tram connections nearby, and by car you can quickly access the A10 ring road.

LIVING AREA AND OUTDOOR SPACE
Living area: approx. 93 m²
Balcony: approx. 9 m²
Storage: approx. 8 m²

HOMEOWNERS’ ASSOCIATION
Active and professionally managed homeowners’ association
Service charges approx. € 188 per month
Contribution for courtyard approx. €8.96 per month
Long-term maintenance plan available
Recent exterior painting completed

GROUND LEASE
The property is situated on municipal leasehold land. The annual ground rent amounts to €2,592 and the current period runs until 31-07-2066. The transition to perpetual leasehold has already been secured under favourable conditions at the notary.

TRANSFER
To be agreed

DISCLAIMER
This information has been compiled with due care. However, no rights can be derived from its contents. All stated measurements and surface areas are indicative.

Eigenschappen

Overdracht

Prijs:

€ 750.000,-
Kosten koper

Status:

Beschikbaar

Servicekosten:

Niet beschikbaar
Bouw

Type gebouw:

Appartement

Bouwjaar:

2018
Oppervlakte & inhoud

Woonoppervlakte:

93

Inhoud:

306
Indeling

Aantal kamers:

3

Slaapkamers:

2

Plan een bezichtiging

Bij sommige woningen is een optie tot direct zelf inplannen via de knop ‘Plan afspraak’. Anders kun je hier een bezichtiging aanvragen en nemen wij zo snel mogelijk contact op.

Vind sneller jouw nieuwe huis

Maak kennis met Copaan, de slimme zoektool voor koopwoningen.

Vul al je woonwensen in, van harde eis tot ‘dat zou leuk zijn’ en Copaan vindt de best matchende buurten & woningen voor je