Ga naar de inhoud

Woningaanbod

Ster met streepjes dikker | Thoma Post Makelaars

Keizersgracht 154 A

€ 2.500.000,-
Kosten koper
Aantal kamers icoon | Makelaar Amsterdam
Aantal kamers: 8
Woonoppervlakte icoon | Makelaar Amsterdam
Woonoppervlakte: 285
Bouwjaar icoon | Makelaar Amsterdam
Bouwjaar: 1620

Omschrijving

3 UNIEKE APPARTEMENTSRECHTEN IN RIJKSMONUMENTAAL GRACHTENPAND AAN DE KEIZERSGRACHT

Aan de iconische Keizersgracht 154 wordt een bijzonder geheel aangeboden: drie unieke appartementsrechten (A, B en D) in een rijks-monumentaal grachtenpand, welke uitsluitend als geheel worden verkocht. Een zeldzame kans voor wie groots wil wonen, ontwikkelen of wonen en werken wil combineren, midden in de historische grachtengordel van Amsterdam.

KARAKTER & LIGGING
Het pand ademt historie met zijn marmeren hallen, originele trappenhuizen en monumentale details die zo kenmerkend zijn voor grachtenpanden van dit kaliber. De fundering is vernieuwd in 1998 en het gebouw is in 2011 gesplitst in appartementsrechten – een solide basis voor een hoogwaardige renovatie.

De ligging is ronduit uniek:
Voorzijde: vrij uitzicht over de Keizersgracht
Achterzijde: een diepe, groene en uitzonderlijk rustige tuin
Deze combinatie van monumentale grandeur, groen en privacy aan de achterzijde en de levendigheid van de binnenstad maakt dit object bijzonder aantrekkelijk.

FUNCTIES
Appartementsrechten A en B: wonen én bedrijfsruimte toegestaan
Appartementsrecht D: uitsluitend wonen
Hierdoor is het pand geschikt voor zowel particulier gebruik als kleinschalig zakelijk gebruik.

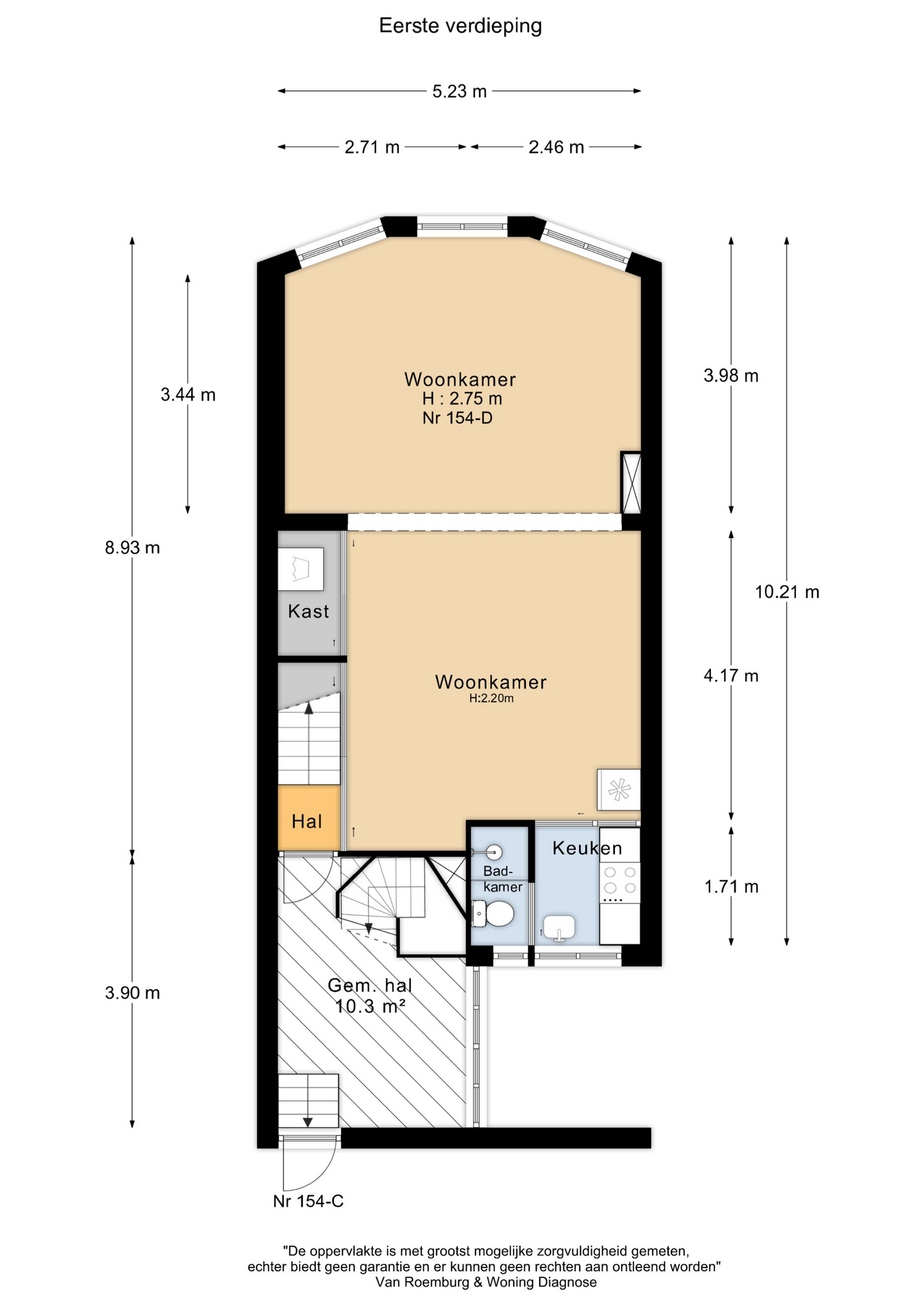
INDELING PER APPARTEMENTSRECHT
Appartementsrecht A
ca. 44 m² woonruimte
ca. 44 m² overige inpandige ruimte
Functie: wonen + bedrijfsruimte

Appartementsrecht B
ca. 47 m² woonruimte
ca. 73 m² overige inpandige ruimte
Tuinhuis van ca. 14 m²
Diepe tuin met klassieke serre
Functie: wonen + bedrijfsruimte

Appartementsrecht D
ca. 63 m² woonruimte
Dakterras aan de achterzijde
Functie: wonen

Appartementsrecht C
Maakt géén onderdeel uit van het verkochte. De betreffende eigenaar heeft wel aangegeven open te staan voor verkoop. Dit betreft circa 185 m² gerenoveerde woonruimte.

POTENTIE
Het geheel is jarenlang beperkt gebruikt en vraagt om een volledige renovatie, wat juist veel mogelijkheden biedt, zoals:
samenvoegen tot één royaal familiehuis (eventueel met aparte etage voor au pair of kinderen)
hoogwaardige herontwikkeling
combinatie van wonen en werken

BUITENRUIMTE
Aan de achterzijde bevindt zich een diepe, groene tuin van ca. 79 m² (13,9 x 5,69 m) met een tuinhuis van ca. 14 m².
Het bovenste appartement beschikt over een dakterras met uitzicht over de binnentuinen.

PRAKTISCHE INFORMATIE
Rijksmonument (nr. 2508)
Bouwjaar 1620, verlengde achterhuis 1877
Perceeloppervlakte: 2a 41ca
Fundering vernieuwd in 1998
Splitsing in 4 appartementsrechten (2011)
VvE “De Twee Gekroonde Gieters” (slapend)
Ondersplitsing volgens huidige akte niet toegestaan
Verkoopvoorwaarden: ouderdomsclausule, niet-zelfbewoning, as-is-where-is

Voor rijksmonumenten zijn fiscale aftrekregelingen voor instandhoudingskosten van toepassing

INTERESSE?
Bezichtigingen vinden plaats op afspraak.
Documentatie zoals splitsingsakte, meetrapporten, plattegronden en foto’s is beschikbaar op verzoek.


THREE DISTINCT APARTMENT RIGHTS IN A MONUMENTAL CANAL HOUSE ON KEIZERSGRACHT

A rare opportunity to acquire three individual apartment rights (A, B and D) within an impressive nationally listed canal house, offered as a single transaction, located at Keizersgracht 154 in the historic heart of Amsterdam.
This property offers exceptional potential for owner-occupiers, investors or developers seeking scale, flexibility and a prime canal-side address.

CHARACTER & LOCATION
The building retains many original period features, including marble entrance halls, original staircases and historic architectural details typical of grand canal houses of this calibre. The foundation was renewed in 1998 and the property was legally divided into apartment rights in 2011, providing a solid structural and legal framework for redevelopment.

One of the property’s strongest attributes is its dual aspect:
Front: unobstructed views over the Keizersgracht
Rear: a deep, green and unusually quiet garden
This combination of monumentality, privacy and central city vibrancy is increasingly rare within the canal belt.

USE CLASSES
Apartment rights A and B: residential and commercial use permitted
Apartment right D: residential use only
This flexibility makes the property suitable for private occupation, mixed-use concepts or boutique professional use.

ACCOMMODATION (PER APARTMENT RIGHT)
Apartment Right A
Approx. 44 sq m of residential space
Approx. 44 sq m of additional internal space
Use: residential & commercial

Apartment Right B
Approx. 47 sq m of residential space
Approx. 73 sq m of additional internal space
Garden house approx. 14 sq m
Deep garden with classical conservatory
Use: residential & commercial

Apartment Right D
Approx. 63 sq m of residential space
Private rear-facing roof terrace
Use: residential

Apartment Right C
Not included in the sale. The owner has indicated a willingness to consider a sale.
This apartment comprises approximately 185 sq m of renovated residential accommodation.

DEVELOPMENT POTENTIAL
The property has been only lightly used in recent years and now requires full renovation, offering a blank canvas for:
conversion into a substantial single-family canal house (with separate upper-floor accommodation for au pair or guests)
high-end redevelopment or repositioning
combining residential living with professional use

OUTDOOR SPACE
To the rear lies a deep, landscaped garden of approximately 79 sq m (13.9 m x 5.69 m), including a garden house of approx. 14 sq m.
The upper apartment benefits from a rear-facing roof terrace overlooking the surrounding gardens.

PRACTICAL INFORMATION
National Monument (Rijksmonument no. 2508)
Plot size: 241 sq m
Foundation renewed in 1998
Division into four apartment rights in 2011
Owners’ Association “De Twee Gekroonde Gieters” (inactive)
Further subdivision not permitted under the current deed
Sale conditions: age clause, non-owner-occupancy clause, as-is-where-is
As a listed monument, owners may benefit from Dutch tax relief schemes for maintenance and conservation costs

VIEWINGS
Viewings are strictly by appointment.
Full documentation, including division deed, measurement reports, floor plans and photographs, is available upon request.

Eigenschappen

Overdracht

Prijs:

€ 2.500.000,-
Kosten koper

Status:

Beschikbaar

Servicekosten:

Niet beschikbaar
Bouw

Type gebouw:

Woonhuis

Bouwjaar:

1620
Oppervlakte & inhoud

Woonoppervlakte:

285

Inhoud:

467
Indeling

Aantal kamers:

8

Slaapkamers:

2

Plan een bezichtiging

Bij sommige woningen is een optie tot direct zelf inplannen via de knop ‘Plan afspraak’. Anders kun je hier een bezichtiging aanvragen en nemen wij zo snel mogelijk contact op.

Vind sneller jouw nieuwe huis

Maak kennis met Copaan, de slimme zoektool voor koopwoningen.

Vul al je woonwensen in, van harde eis tot ‘dat zou leuk zijn’ en Copaan vindt de best matchende buurten & woningen voor je